![]() | Официальная правовая информация |
ПАСТАНОВА МІНІСТЭРСТВА КУЛЬТУРЫ РЭСПУБЛІКІ БЕЛАРУСЬ
23 кастрычніка 2025 г. № 111
Аб зацвярджэнні праектаў зон аховы нерухомых матэрыяльных гісторыка-культурных каштоўнасцей (помнікаў гісторыі), размешчаных на тэрыторыі Горацкага раёна Магілёўскай вобласці
На падставе пункта 3 артыкула 105 Кодэкса Рэспублікі Беларусь аб культуры і абзаца пятага падпункта 5.27 пункта 5 Палажэння аб Міністэрстве культуры, зацверджанага пастановай Савета Міністраў Рэспублікі Беларусь ад 17 студзеня 2017 г. № 40, Міністэрства культуры Рэспублікі Беларусь ПАСТАНАЎЛЯЕ:
1. Зацвердзіць:
праект зон аховы нерухомай матэрыяльнай гісторыка-культурнай каштоўнасці «Брацкая магіла» ў аграгарадку Горы Горацкага раёна Магілёўскай вобласці (дадаецца);
праект зон аховы нерухомай матэрыяльнай гісторыка-культурнай каштоўнасці «Ваенныя могілкі» ў аграгарадку Каменка Горацкага раёна Магілёўскай вобласці (дадаецца);
праект зон аховы нерухомай матэрыяльнай гісторыка-культурнай каштоўнасці «Брацкая магіла» ў в. Панкратаўка Горацкага раёна Магілёўскай вобласці (дадаецца);
праект зон аховы нерухомай матэрыяльнай гісторыка-культурнай каштоўнасці «Брацкая магіла» ў в. Паленка Горацкага раёна Магілёўскай вобласці (дадаецца);
праект зон аховы нерухомай матэрыяльнай гісторыка-культурнай каштоўнасці «Брацкая магіла» ў аграгарадку Рэкта Горацкага раёна Магілёўскай вобласці (дадаецца).
2. Гэта пастанова ўступае ў сілу пасля яе афіцыйнага апублікавання.
|
Міністр |
Р.І.Чарнецкі |
|
|
Пастанова 23.10.2025 № 111 |
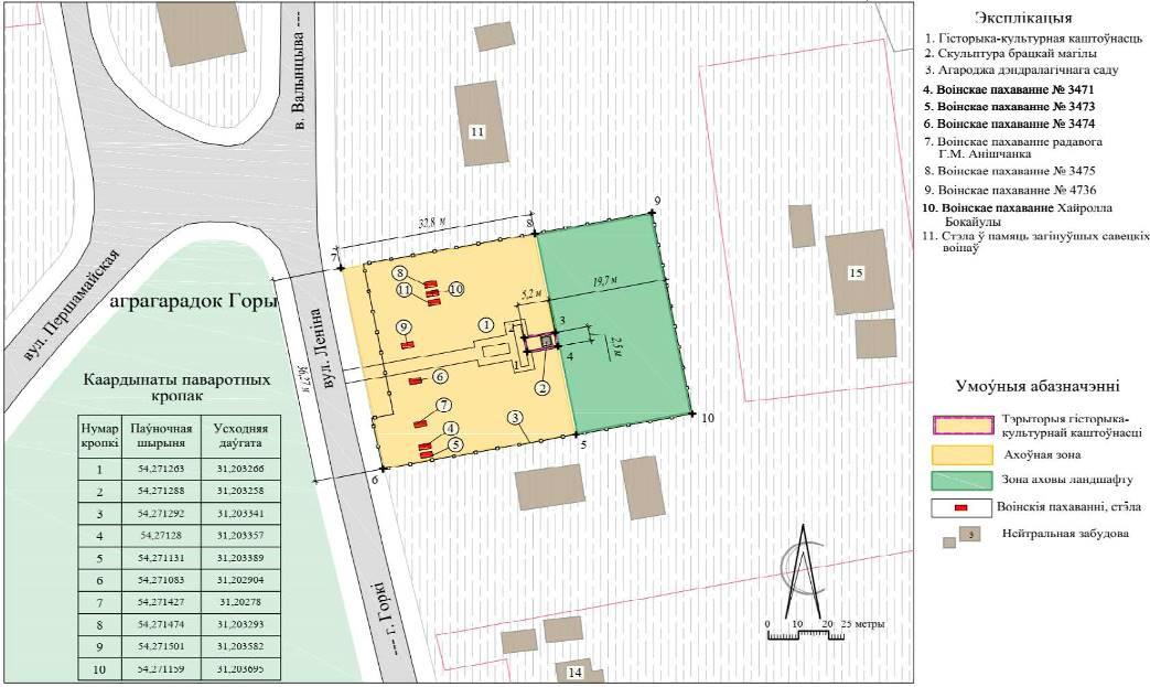
Праект зон аховы нерухомай матэрыяльнай гісторыка-культурнай каштоўнасці «Брацкая магіла» ў аграгарадку Горы Горацкага раёна Магілёўскай вобласці
ГЛАВА 1
АГУЛЬНЫЯ ПАЛАЖЭННІ
1. Праект зон аховы нерухомай матэрыяльнай гісторыка-культурнай каштоўнасці «Брацкая магіла» ў аграгарадку Горы Горацкага раёна Магілёўскай вобласці (далей – праект зон аховы) распрацаваны на падставе пункта 3 артыкула 105 Кодэкса Рэспублікі Беларусь аб культуры.
2. «Брацкая магіла» ў аграгарадку Горы Горацкага раёна Магілёўскай вобласці з’яўляецца нерухомай матэрыяльнай гісторыка-культурнай каштоўнасцю катэгорыі «3» (далей – гісторыка-культурная каштоўнасць), якая ўключана ў Дзяржаўны спіс гісторыка-культурных каштоўнасцей Рэспублікі Беларусь пад шыфрам 513Д000442.
3. Праект зон аховы распрацаваны індывідуальным прадпрымальнікам Вырасткам Уладзімірам Станіслававічам па заказе дзяржаўнай установы «Горацкі раённы цэнтр па забеспячэнні дзейнасці бюджэтных арганізацый».
4. Праект зон аховы распрацаваны з мэтай забеспячэння захавання гісторыка-культурнай каштоўнасці і яе навакольнага асяроддзя, заключаецца ў вызначэнні мяжы тэрыторыі гісторыка-культурнай каштоўнасці, ахоўнай зоны гісторыка-культурнай каштоўнасці (далей – ахоўная зона), зоны аховы ландшафту гісторыка-культурнай каштоўнасці (далей – зона аховы ландшафту) і іх межаў, рэжымаў іх утрымання і выкарыстання.
5. Праект зон аховы распрацаваны на падставе архіўна-бібліяграфічных і натурных даследаванняў, аналізу горадабудаўнічай сітуацыі і ландшафту.
Схема зон аховы гісторыка-культурнай каштоўнасці дадаецца.
ГЛАВА 2
ТЭРЫТОРЫЯ ГІСТОРЫКА-КУЛЬТУРНАЙ КАШТОЎНАСЦІ
6. Тэрыторыя гісторыка-культурнай каштоўнасці вызначана па вонкавых межах існуючай бетоннай пляцоўкі брацкай магілы памерамі 2,5х5,2 м, дзе размешчаны воінскія пахаванні и скульптурная кампазіцыя.
7. Мяжой тэрыторыі гісторыка-культурнай каштоўнасці згодна з дадаткам з’яўляецца ўмоўная лінія, якая ідзе ўздоўж вонкавага контуру бетоннай пляцоўкі ад кропкі 1 праз кропкі 2–3–4 да кропкі 1.
8. На тэрыторыі гісторыка-культурнай каштоўнасці забараняецца:
знішчэнне, прычыненне шкоды, пагаршэнне тэхнічнага стану гісторыка-культурнай каштоўнасці і яе элементаў;
пахаванні, не звязаныя з гісторыка-культурнай каштоўнасцю;
узвядзенне збудаванняў;
выкананне рамонтна-рэстаўрацыйных работ на гісторыка-культурнай каштоўнасці без навукова-праектнай дакументацыі, распрацаванай ва ўстаноўленым парадку;
правядзенне работ па добраўпарадкаванні і азеляненні, усталяванне ці размяшчэнне сродкаў вонкавай рэкламы, якія пагаршаюць візуальнае ўспрыманне гісторыка-культурнай каштоўнасці і яе элементаў;
ажыццяўленне дзейнасці без выканання патрабаванняў Палажэння аб парадку добраўпарадкавання воінскіх пахаванняў і пахаванняў ахвяр войнаў, зацверджанага пастановай Савета Міністраў Рэспублікі Беларусь ад 17 верасня 2018 г. № 675.
ГЛАВА 3
АХОЎНАЯ ЗОНА
9. Ахоўная зона ўстаноўлена для забеспячэння захавання гісторыка-культурнай каштоўнасці і яе навакольнага асяроддзя, найлепшага зрокавага ўспрымання гісторыка-культурнай каштоўнасці.
У ахоўную зону ўваходзіць тэрыторыя гісторыка-культурнай каштоўнасці.
10. Мяжой ахоўнай зоны згодна з дадаткам з’яўляецца:
на ўсходзе – умоўная лінія працягласцю 36,27 м, якая ідзе ад кропкі 8 на поўдзень у створы з усходняй мяжой тэрыторыі гісторыка-культурнай каштоўнасці праз кропкі 3–4 да кропкі 5;
на поўдні – умоўная лінія працягласцю 32,8 м, якая ідзе ад кропкі 5 на захад уздоўж паўднёвай вонкавай мяжы агароджы дэндралагічнага саду да кропкі 6;
на захадзе – умоўная лінія працягласцю 36,27 м, якая ідзе ад кропкі 6 на поўнач паралельна вул. Леніна да кропкі 7;
на поўначы – умоўная лінія працягласцю 32,8 м, якая ідзе ад кропкі 7 на ўсход уздоўж паўночнай вонкавай мяжой агароджы дэндралагічнага саду да кропкі 8.
11. На тэрыторыі ахоўнай зоны забараняецца:
узвядзенне будынкаў і збудаванняў;
знішчэнне, прычыненне шкоды, дэмантаж гістарычных воінскіх пахаванняў;
пракладка інжынерных камунікацый, акрамя рамонту існуючых інжынерных камунікацый з аднаўленнем добраўпарадкавання;
пахаванні, не звязаныя з гісторыка-культурнай каштоўнасцю;
правядзенне работ па добраўпарадкаванні і азеляненні без уліку тэматыкі і стылістыкі гісторыка-культурнай каштоўнасці, а таксама якія пагаршаюць ўспрыманне аб’ёмна-прасторавых асаблівасцей і элементаў гісторыка-культурнай каштоўнасці;
высечка дрэў, акрамя аб’ектаў расліннага свету, якія знаходзяцца ў неналежным (аварыйным) стане на падставе заключэння аб прызнанні дрэва небяспечным, а таксама акрамя санітарных высяканняў;
ажыццяўленне дзейнасці без выканання патрабаванняў Палажэння аб парадку добраўпарадкавання воінскіх пахаванняў і пахаванняў ахвяр войнаў.
ГЛАВА 4
ЗОНА АХОВЫ ЛАНДШАФТУ
12. Зона аховы ландшафту ўстаноўлена зыходзячы з неабходнасці захавання ландшафтнай тэрыторыі, якая мае візуальную сувязь з гісторыка-культурнай каштоўнасцю.
13. Мяжой зоны аховы ландшафту згодна з дадаткам з’яўляецца:
на паўночным захадзе – умоўная лінія працягласцю 19,7 м, якая ідзе ад кропкі 8 на поўнач у створы з паўночнай мяжой ахоўнай зоны да кропкі 9;
на ўсходзе – умоўная лінія працягласцю 36,27 м, якая ідзе ад кропкі 9 на поўдзень да кропкі 10;
на паўднёвым усходзе – умоўная лінія працягласцю 19,7 м, якая ідзе ад кропкі 10 на поўдзень у створы з паўднёвай мяжой ахоўнай зоны да кропкі 5;
на захадзе – умоўная лінія працягласцю 36,27 м, якая ідзе ад кропкі 5 на поўнач па усходняй мяжы ахоўнай зоны да кропкі 8.
14. На тэрыторыі зоны аховы ландшафту забараняецца:
узвядзенне будынкаў і збудаванняў;
правядзенне работ па добраўпарадкаванні і азеляненні, якія пагаршаюць візуальнае ўспрыманне гісторыка-культурнай каштоўнасці і парушаюць характар існуючага ландшафту, рэльефу;
пракладка інжынерных камунікацый, акрамя рэканструкцыі (рамонту) існуючых інжынерных камунікацый, мясцовых праездаў і дарог;
высечка дрэў, акрамя аб’ектаў расліннага свету, якія знаходзяцца ў неналежным (аварыйным) стане на падставе заключэння аб прызнанні дрэва небяспечным, а таксама акрамя санітарных высяканняў.
|
|
да праекта зон аховы нерухомай |
СХЕМА ЗОН АХОВЫ ГІСТОРЫКА-КУЛЬТУРНАЙ КАШТОЎНАСЦІ

|
|
Пастанова 23.10.2025 № 111 |
Праект зон аховы нерухомай матэрыяльнай гісторыка-культурнай каштоўнасці «Ваенныя могілкі» ў аграгарадку Каменка Горацкага раёна Магілёўскай вобласці
ГЛАВА 1
АГУЛЬНЫЯ ПАЛАЖЭННІ
1. Праект зон аховы нерухомай матэрыяльнай гісторыка-культурнай каштоўнасці «Ваенныя могілкі» ў аграгарадку Каменка Горацкага раёна Магілёўскай вобласці (далей – праект зон аховы) распрацаваны на падставе пункта 3 артыкула 105 Кодэкса Рэспублікі Беларусь аб культуры.
2. «Ваенныя могілкі» ў аграгарадку Каменка Горацкага раёна Магілёўскай вобласці з’яўляюцца нерухомай матэрыяльнай гісторыка-культурнай каштоўнасцю катэгорыі «3» (далей – гісторыка-культурная каштоўнасць), якая ўключана ў Дзяржаўны спіс гісторыка-культурных каштоўнасцей Рэспублікі Беларусь пад шыфрам 513Д000443.
3. Праект зон аховы распрацаваны індывідуальным прадпрымальнікам Вырасткам Уладзімірам Станіслававічам па заказе дзяржаўнай установы «Горацкі раённы цэнтр па забеспячэнні дзейнасці бюджэтных арганізацый».
4. Праект зон аховы распрацаваны з мэтай забеспячэння захавання гісторыка-культурнай каштоўнасці і яе навакольнага асяроддзя, заключаецца ў вызначэнні мяжы тэрыторыі гісторыка-культурнай каштоўнасці, ахоўнай зоны гісторыка-культурнай каштоўнасці (далей – ахоўная зона), зоны аховы ландшафту гісторыка-культурнай каштоўнасці (далей – зона аховы ландшафту) і іх межаў, рэжымаў іх утрымання і выкарыстання.
5. Праект зон аховы распрацаваны на падставе архіўна-бібліяграфічных і натурных даследаванняў, аналізу горадабудаўнічай сітуацыі і ландшафту.
Схема зон аховы гісторыка-культурнай каштоўнасці дадаецца.
ГЛАВА 2
ТЭРЫТОРЫІ ГІСТОРЫКА-КУЛЬТУРНАЙ КАШТОЎНАСЦІ. АХОЎНАЯ ЗОНА
6. Тэрыторыя гісторыка-культурнай каштоўнасці вызначана ў межах існуючых архітэктурна-планіровачных элементаў ваенных могілак, дзе размешчаны воінскія пахаванні, скульптурная кампазіцыя, элементы азелянення і добраўпарадкавання.
7. Ахоўная зона ўстаноўлена для забеспячэння захавання гісторыка-культурнай каштоўнасці і яе навакольнага асяроддзя, найлепшага візуальнага ўспрымання гісторыка-культурнай каштоўнасці.
Ахоўная зона супадае з тэрыторыяй гісторыка-культурнай каштоўнасці.
8. Мяжой тэрыторыі гісторыка-культурнай каштоўнасці і ахоўнай зоны згодна з дадаткам з’яўляецца:
на поўдні – умоўная лінія працягласцю 27 м, якая ідзе ад кропкі 1 на захад паралельна паўднёвай вонкавай мяжы агароджы ваенных могілак і на адлегласці ад яе 8 м да кропкі 2;
на захадзе – умоўная лінія працягласцю 49 м, якая ідзе ад кропкі 2 на поўнач уздоўж заходняй вонкавай мяжы агароджы ваенных могілак да кропкі 3;
на поўначы – умоўная лінія працягласцю 27 м, якая ідзе ад кропкі 3 на ўсход уздоўж паўночнай вонкавай мяжы агароджы ваенных могілак да кропкі 4;
на ўсходзе – умоўная лінія працягласцю 49 м, якая ідзе ад кропкі 4 на поўдзень да кропкі 1.
9. На тэрыторыі гісторыка-культурнай каштоўнасці і ахоўнай зоны забараняецца:
знішчэнне, прычыненне шкоды, пагаршэнне тэхнічнага стану гісторыка-культурнай каштоўнасці, памятным аб’ектам;
узвядзенне будынкаў і збудаванняў;
выкананне рамонтна-рэстаўрацыйных работ без навукова-праектнай дакументацыі, узгодненай ва ўстаноўленым парадку;
пракладка інжынерных камунікацый, акрамя рамонту існуючых інжынерных камунікацый з аднаўленнем добраўпарадкавання;
добраўпарадкаванне і азеляненне, усталяванне сродкаў вонкавай рэкламы, якія пагаршаюць візуальнае ўспрыманне гісторыка-культурнай каштоўнасці і яе элементаў;
пахаванні, не звязаныя з гісторыка-культурнай каштоўнасцю;
высечка дрэў, акрамя аб’ектаў расліннага свету, якія знаходзяцца ў неналежным (аварыйным) стане на падставе заключэння аб прызнанні дрэва небяспечным, а таксама акрамя санітарных высяканняў;
ажыццяўленне дзейнасці без выканання патрабаванняў Палажэння аб парадку добраўпарадкавання воінскіх пахаванняў і пахаванняў ахвяр войнаў, зацверджанага пастановай Савета Міністраў Рэспублікі Беларусь ад 17 верасня 2018 г. № 675.
ГЛАВА 3
ЗОНА АХОВЫ ЛАНДШАФТУ
10. Зона аховы ландшафту ўстаноўлена з мэтай захавання навакольнага асяроддзя, азелянення і існуючага ландшафту, візуальна звязаных з гісторыка-культурнай каштоўнасцю.
11. Мяжой зоны аховы ландшафту згодна з дадаткам з’яўляецца:
на захадзе – умоўная лінія, якая ідзе ад кропкі 1 на поўнач па ўсходняй мяжы тэрыторыі гісторыка-культурнай каштоўнасці і ахоўнай зоны да кропкі 4;
на поўначы – умоўная лінія працягласцю 27 м, якая ідзе ад кропкі 4 на ўсход да кропкі 5;
на ўсходзе – умоўная лінія працягласцю 49 м, якая ідзе ад кропкі 5 на поўдзень да кропкі 6;
на поўдні – умоўная лінія працягласцю 27 м, якая ідзе ад кропкі 6 на захад да кропкі 1.
12. На тэрыторыі зоны аховы ландшафту забараняецца:
узвядзенне будынкаў і збудаванняў;
правядзенне работ па добраўпарадкаванні і азеляненні, якія пагаршаюць візуальнае ўспрыманне гісторыка-культурнай каштоўнасці і парушаюць характар існуючага ландшафту, рэльефу;
пракладка інжынерных камунікацый, акрамя рэканструкцыі (рамонту) існуючых інжынерных камунікацый, мясцовых праездаў і дарог;
высечка дрэў, акрамя аб’ектаў расліннага свету, якія знаходзяцца ў неналежным (аварыйным) стане на падставе заключэння аб прызнанні дрэва небяспечным, а таксама акрамя санітарных высяканняў.
|
|
да праекта зон аховы нерухомай |
СХЕМА ЗОН АХОВЫ ГІСТОРЫКА-КУЛЬТУРНАЙ КАШТОЎНАСЦІ

|
|
Пастанова 23.10.2025 № 111 |
Праект зон аховы нерухомай матэрыяльнай гісторыка-культурнай каштоўнасці «Брацкая магіла» ў в. Панкратаўка Горацкага раёна Магілёўскай вобласці
ГЛАВА 1
АГУЛЬНЫЯ ПАЛАЖЭННІ
1. Праект зон аховы нерухомай матэрыяльнай гісторыка-культурнай каштоўнасці «Брацкая магіла» ў в. Панкратаўка Горацкага раёна Магілёўскай вобласці (далей – праект зон аховы) распрацаваны на падставе пункта 3 артыкула 105 Кодэкса Рэспублікі Беларусь аб культуры.
2. «Брацкая магіла» ў в. Панкратаўка Горацкага раёна Магілёўскай вобласці з’яўляецца нерухомай матэрыяльнай гісторыка-культурнай каштоўнасцю катэгорыі «3» (далей – гісторыка-культурная каштоўнасць), якая ўключана ў Дзяржаўны спіс гісторыка-культурных каштоўнасцей Рэспублікі Беларусь пад шыфрам 513Д000446.
3. Праект зон аховы распрацаваны індывідуальным прадпрымальнікам Вырасткам Уладзімірам Станіслававічам па заказе дзяржаўнай установы «Горацкі раённы цэнтр па забеспячэнні дзейнасці бюджэтных арганізацый».
4. Праект зон аховы распрацаваны з мэтай забеспячэння захавання гісторыка-культурнай каштоўнасці і яе навакольнага асяроддзя, заключаецца ў вызначэнні мяжы тэрыторыі гісторыка-культурнай каштоўнасці, ахоўнай зоны гісторыка-культурнай каштоўнасці (далей – ахоўная зона), зоны аховы ландшафту гісторыка-культурнай каштоўнасці (далей – зона аховы ландшафту) і іх межаў, рэжымаў іх утрымання і выкарыстання.
5. Праект зон аховы распрацаваны на падставе архіўна-бібліяграфічных і натурных даследаванняў, аналізу горадабудаўнічай сітуацыі і ландшафту.
Схема зон аховы гісторыка-культурнай каштоўнасці дадаецца.
ГЛАВА 2
ТЭРЫТОРЫІ ГІСТОРЫКА-КУЛЬТУРНАЙ КАШТОЎНАСЦІ. АХОЎНАЯ ЗОНА
6. Тэрыторыя гісторыка-культурнай каштоўнасці вызначана ў межах існуючай агароджы брацкай магілы памерами 4х7,8 м, дзе размешчаны воінскія пахаванні, скульптурная кампазіцыя і элементы добраўпарадкавання.
7. Ахоўная зона ўстаноўлена для забеспячэння захавання гісторыка-культурнай каштоўнасці і яе навакольнага асяроддзя, найлепшага візуальнага ўспрымання гісторыка-культурнай каштоўнасці.
Ахоўная зона супадае з тэрыторыяй гісторыка-культурнай каштоўнасці.
8. Мяжой тэрыторыі гісторыка-культурнай каштоўнасці і ахоўнай зоны згодна з дадаткам з’яўляецца ўмоўная лінія, якая ідзе ад кропкі 1 уздоўж вонкавай мяжы агароджы брацкай магілы праз кропкі 2–3–4 да кропкі 1.
9. На тэрыторыі гісторыка-культурнай каштоўнасці і ахоўнай зоны забараняецца:
знішчэнне, прычыненне шкоды, пагаршэнне тэхнічнага стану гісторыка-культурнай каштоўнасці;
узвядзенне будынкаў і збудаванняў;
выкананне рамонтна-рэстаўрацыйных работ без навукова-праектнай дакументацыі, узгодненай ва ўстаноўленым парадку;
пракладка інжынерных камунікацый, акрамя рамонту існуючых інжынерных камунікацый з аднаўленнем добраўпарадкавання;
добраўпарадкаванне і азеляненне, усталяванне сродкаў вонкавай рэкламы, якія пагаршаюць візуальнае ўспрыманне гісторыка-культурнай каштоўнасці і яе элементаў;
пахаванні, не звязаныя з гісторыка-культурнай каштоўнасцю;
высечка дрэў, акрамя аб’ектаў расліннага свету, якія знаходзяцца ў неналежным (аварыйным) стане на падставе заключэння аб прызнанні дрэва небяспечным, а таксама акрамя санітарных высяканняў;
ажыццяўленне дзейнасці без выканання патрабаванняў Палажэння аб парадку добраўпарадкавання воінскіх пахаванняў і пахаванняў ахвяр войнаў, зацверджанага пастановай Савета Міністраў Рэспублікі Беларусь ад 17 верасня 2018 г. № 675.
ГЛАВА 3
ЗОНА АХОВЫ ЛАНДШАФТУ
10. Зона аховы ландшафту ўстаноўлена вакол тэрыторыі гісторыка-культурнай каштоўнасці і ахоўнай зоны з мэтай захавання навакольнага асяроддзя, азелянення і існуючага ландшафту, звязаных з гісторыка-культурнай каштоўнасцю.
11. Знешняй мяжой зоны аховы ландшафту згодна з дадаткам з’яўляецца ўмоўная лінія, якая ідзе ад кропкі 5 уздоўж вонкавага контуру агароджы сквера праз кропкі 6–7–8–9–10 да кропкі 5.
Унутранай мяжой зоны аховы ландшафту з’яўляецца мяжа тэрыторыі гісторыка-культурнай каштоўнасці і ахоўнай зоны.
12. На тэрыторыі зоны аховы ландшафту забараняецца:
узвядзенне будынкаў і збудаванняў;
правядзенне работ па добраўпарадкаванні і азеляненні, якія пагаршаюць візуальнае ўспрыманне гісторыка-культурнай каштоўнасці і парушаюць характар існуючага ландшафту, рэльефу;
пракладка інжынерных камунікацый, акрамя рэканструкцыі (рамонту) існуючых інжынерных камунікацый, мясцовых праездаў і дарог;
высечка дрэў, акрамя аб’ектаў расліннага свету, якія знаходзяцца ў неналежным (аварыйным) стане на падставе заключэння аб прызнанні дрэва небяспечным, а таксама акрамя санітарных высяканняў.
|
|
да праекта зон аховы нерухомай |
СХЕМА ЗОН АХОВЫ ГІСТОРЫКА-КУЛЬТУРНАЙ КАШТОЎНАСЦІ

|
|
Пастанова 23.10.2025 № 111 |
Праект зон аховы нерухомай матэрыяльнай гісторыка-культурнай каштоўнасці «Брацкая магіла» ў в. Паленка Горацкага раёна Магілёўскай вобласці
ГЛАВА 1
АГУЛЬНЫЯ ПАЛАЖЭННІ
1. Праект зон аховы нерухомай матэрыяльнай гісторыка-культурнай каштоўнасці «Брацкая магіла» ў в. Паленка Горацкага раёна Магілёўскай вобласці (далей – праект зон аховы) распрацаваны на падставе пункта 3 артыкула 105 Кодэкса Рэспублікі Беларусь аб культуры.
2. «Брацкая магіла» ў в. Паленка Горацкага раёна Магілёўскай вобласці з’яўляецца нерухомай матэрыяльнай гісторыка-культурнай каштоўнасцю катэгорыі «3» (далей – гісторыка-культурная каштоўнасць), якая ўключана ў Дзяржаўны спіс гісторыка-культурных каштоўнасцей Рэспублікі Беларусь пад шыфрам 513Д000447.
3. Праект зон аховы распрацаваны індывідуальным прадпрымальнікам Вырасткам Уладзімірам Станіслававічам па заказе дзяржаўнай установы «Горацкі раённы цэнтр па забеспячэнні дзейнасці бюджэтных арганізацый».
4. Праект зон аховы распрацаваны з мэтай забеспячэння захавання гісторыка-культурнай каштоўнасці і яе навакольнага асяроддзя, заключаецца ў вызначэнні мяжы тэрыторыі гісторыка-культурнай каштоўнасці, ахоўнай зоны гісторыка-культурнай каштоўнасці (далей – ахоўная зона), зоны аховы ландшафту гісторыка-культурнай каштоўнасці (далей – зона аховы ландшафту) і іх межаў, рэжымаў іх утрымання і выкарыстання.
5. Праект зон аховы распрацаваны на падставе архіўна-бібліяграфічных і натурных даследаванняў, аналізу горадабудаўнічай сітуацыі і ландшафту.
Схема зон аховы гісторыка-культурнай каштоўнасці дадаецца.
ГЛАВА 2
ТЭРЫТОРЫЯ ГІСТОРЫКА-КУЛЬТУРНАЙ КАШТОЎНАСЦІ
6. Тэрыторыя гісторыка-культурнай каштоўнасці вызначана па вонкавых межах існуючай бетоннай пляцоўкі брацкай магілы памерамі 15х20 м, дзе размешчаны воінскія пахаванні, скульптурная кампазіцыя і элементы добраўпарадкавання.
7. Мяжой тэрыторыі гісторыка-культурнай каштоўнасці згодна з дадаткам з’яўляецца ўмоўная лінія, якая ідзе ад кропкі 1 уздоўж вонкавага контуру бетоннай пляцоўкі праз кропкі 2–3–4 да кропкі 1.
8. На тэрыторыі гісторыка-культурнай каштоўнасці забараняецца:
знішчэнне, прычыненне шкоды, пагаршэнне тэхнічнага стану гісторыка-культурнай каштоўнасці і яе элементаў;
пахаванні, не звязаныя з гісторыка-культурнай каштоўнасцю;
узвядзенне збудаванняў;
выкананне рамонтна-рэстаўрацыйных работ на гісторыка-культурнай каштоўнасці без навукова-праектнай дакументацыі, распрацаванай ва ўстаноўленым парадку;
правядзенне работ па добраўпарадкаванні і азеляненні, усталяванне ці размяшчэнне сродкаў вонкавай рэкламы, якія пагаршаюць візуальнае ўспрыманне гісторыка-культурнай каштоўнасці і яе элементаў;
высечка дрэў, акрамя аб’ектаў расліннага свету, якія знаходзяцца ў неналежным (аварыйным) стане на падставе заключэння аб прызнанні дрэва небяспечным, а таксама акрамя санітарных высяканняў;
ажыццяўленне дзейнасці без выканання патрабаванняў Палажэння аб парадку добраўпарадкавання воінскіх пахаванняў і пахаванняў ахвяр войнаў, зацверджанага пастановай Савета Міністраў Рэспублікі Беларусь ад 17 верасня 2018 г. № 675.
ГЛАВА 3
АХОЎНАЯ ЗОНА
9. Ахоўная зона ўстаноўлена для забеспячэння захавання гісторыка-культурнай каштоўнасці і яе навакольнага асяроддзя, найлепшага зрокавага ўспрымання гісторыка-культурнай каштоўнасці.
У ахоўную зону ўваходзіць тэрыторыя гісторыка-культурнай каштоўнасці.
10. Мяжой ахоўнай зоны згодна з дадаткам з’яўляецца:
на паўднёвым усходзе – умоўная лінія, якая ідзе ад кропкі 8 на поўдзень паралельна паўднёва-усходняй мяжы тэрыторыі гісторыка-культурнай каштоўнасці на адлегласці ад яе 5 м да кропкі 5;
на паўднёвым і паўночным захадзе, паўночным усходзе – умоўная лінія, якая ідзе ад кропкі 5 па межах мэтавага зямельнага ўчастка для абслугоўвання збудаванняў брацкай магілы праз кропкі 6–7 да кропкі 8.
11. На тэрыторыі ахоўнай зоны дзейнічаюць рэжымы ўтрымання і выкарыстання, устаноўленыя ў пункце 8 гэтага праекта зон аховы.
ГЛАВА 4
ЗОНА АХОВЫ ЛАНДШАФТУ
12. Зона аховы ландшафту ўстаноўлена зыходзячы з неабходнасці захавання ландшафтнай тэрыторыі, якая мае візуальную сувязь з гісторыка-культурнай каштоўнасцю.
13. Мяжой зоны аховы ландшафту згодна з дадаткам з’яўляецца ўмоўная лінія, якая ідзе ад кропкі 8 па паўднёва-усходняй мяжы ахоўнай зоны да кропкі 5, далей па межах мэтавага зямельнага ўчастка праз кропкі 10–9 да кропкі 8.
14. На тэрыторыі зоны аховы ландшафту забараняецца:
узвядзенне будынкаў і збудаванняў;
правядзенне работ па добраўпарадкаванні і азеляненні, якія пагаршаюць візуальнае ўспрыманне гісторыка-культурнай каштоўнасці і парушаюць характар існуючага ландшафту, рэльефу;
пракладка інжынерных камунікацый, акрамя рэканструкцыі (рамонту) існуючых інжынерных камунікацый, мясцовых праездаў і дарог;
высечка дрэў, акрамя аб’ектаў расліннага свету, якія знаходзяцца ў неналежным (аварыйным) стане на падставе заключэння аб прызнанні дрэва небяспечным, а таксама акрамя санітарных высяканняў.
|
|
да праекта зон аховы нерухомай |
СХЕМА ЗОН АХОВЫ ГІСТОРЫКА-КУЛЬТУРНАЙ КАШТОЎНАСЦІ

|
|
Пастанова 23.10.2025 № 111 |
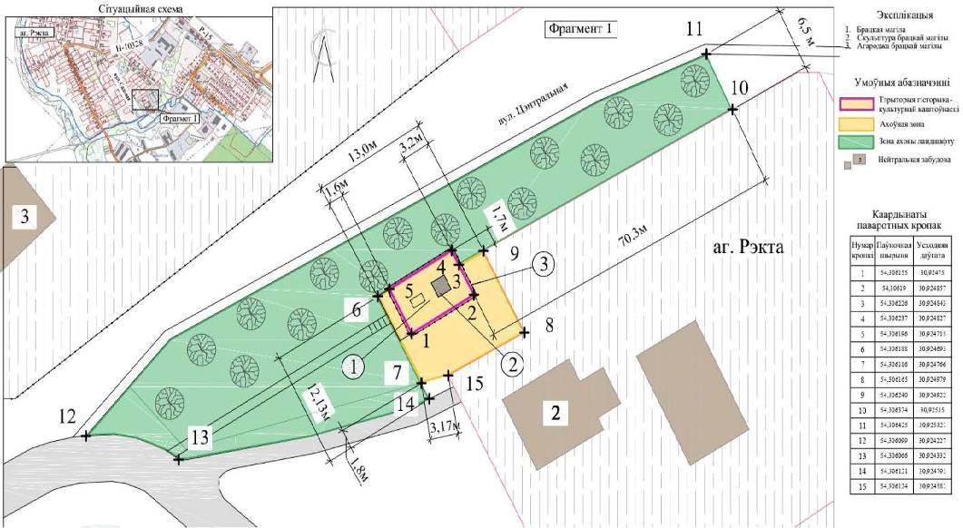
Праект зон аховы нерухомай матэрыяльнай гісторыка-культурнай каштоўнасці «Брацкая магіла» ў аграгарадку Рэкта Горацкага раёна Магілёўскай вобласці
ГЛАВА 1
АГУЛЬНЫЯ ПАЛАЖЭННІ
1. Праект зон аховы нерухомай матэрыяльнай гісторыка-культурнай каштоўнасці «Брацкая магіла» ў аграгарадку Рэкта Горацкага раёна Магілёўскай вобласці (далей – праект зон аховы) распрацаваны на падставе пункта 3 артыкула 105 Кодэкса Рэспублікі Беларусь аб культуры.
2. «Брацкая магіла» ў аграгарадку Рэкта Горацкага раёна Магілёўскай вобласці з’яўляецца нерухомай матэрыяльнай гісторыка-культурнай каштоўнасцю катэгорыі «3» (далей – гісторыка-культурная каштоўнасць), якая ўключана ў Дзяржаўны спіс гісторыка-культурных каштоўнасцей Рэспублікі Беларусь пад шыфрам 513Д000449.
3. Праект зон аховы распрацаваны індывідуальным прадпрымальнікам Вырасткам Уладзімірам Станіслававічам па заказе дзяржаўнай установы «Горацкі раённы цэнтр па забеспячэнні дзейнасці бюджэтных арганізацый».
4. Праект зон аховы распрацаваны з мэтай забеспячэння захавання гісторыка-культурнай каштоўнасці і яе навакольнага асяроддзя, заключаецца ў вызначэнні мяжы тэрыторыі гісторыка-культурнай каштоўнасці, ахоўнай зоны гісторыка-культурнай каштоўнасці (далей – ахоўная зона), зоны аховы ландшафту гісторыка-культурнай каштоўнасці (далей – зона аховы ландшафту) і іх межаў, рэжымаў іх утрымання і выкарыстання.
5. Праект зон аховы распрацаваны на падставе архіўна-бібліяграфічных і натурных даследаванняў, аналізу горадабудаўнічай сітуацыі і ландшафту.
Схема зон аховы гісторыка-культурнай каштоўнасці дадаецца.
ГЛАВА 2
ТЭРЫТОРЫЯ ГІСТОРЫКА-КУЛЬТУРНАЙ КАШТОЎНАСЦІ
6. Тэрыторыя гісторыка-культурнай каштоўнасці вызначана па вонкавых межах існуючай агароджы брацкай магілы памерами 5,25х8,2 м, дзе размешчаны воінскія пахаванні, скульптурная кампазіцыя і элементы добраўпарадкавання.
7. Мяжой тэрыторыі гісторыка-культурнай каштоўнасці згодна з дадаткам з’яўляецца ўмоўная лінія, якая ідзе ад кропкі 1 уздоўж агароджы брацкай магілы праз кропкі 2–3–4–5 да кропкі 1.
8. На тэрыторыі гісторыка-культурнай каштоўнасці забараняецца:
знішчэнне, прычыненне шкоды, пагаршэнне тэхнічнага стану гісторыка-культурнай каштоўнасці і яе элементаў;
пахаванні, не звязаныя з гісторыка-культурнай каштоўнасцю;
узвядзенне збудаванняў;
выкананне рамонтна-рэстаўрацыйных работ на гісторыка-культурнай каштоўнасці без навукова-праектнай дакументацыі, распрацаванай ва ўстаноўленым парадку;
правядзенне работ па добраўпарадкаванні і азеляненні, усталяванне ці размяшчэнне сродкаў вонкавай рэкламы, якія пагаршаюць візуальнае ўспрыманне гісторыка-культурнай каштоўнасці і яе элементаў;
высечка дрэў, акрамя аб’ектаў расліннага свету, якія знаходзяцца ў неналежным (аварыйным) стане на падставе заключэння аб прызнанні дрэва небяспечным, а таксама акрамя санітарных высяканняў;
ажыццяўленне дзейнасці без выканання патрабаванняў Палажэння аб парадку добраўпарадкавання воінскіх пахаванняў і пахаванняў ахвяр войнаў, зацверджанага пастановай Савета Міністраў Рэспублікі Беларусь ад 17 верасня 2018 г. № 675.
ГЛАВА 3
АХОЎНАЯ ЗОНА
9. Ахоўная зона ўстаноўлена для забеспячэння захавання гісторыка-культурнай каштоўнасці і яе навакольнага асяроддзя, найлепшага зрокавага ўспрымання гісторыка-культурнай каштоўнасці.
У ахоўную зону ўваходзіць тэрыторыя гісторыка-культурнай каштоўнасці.
10. Мяжой ахоўнай зоны згодна з дадаткам з’яўляецца:
на паўднёвым захадзе – умоўная лінія працягласцю 10,33 м, якая ідзе ад кропкі 6 на поўдзень паралельна паўднёва-заходняй мяжы тэрыторыі гісторыка-культурнай каштоўнасці на адлегласці ад яе 1,6 м да кропкі 7;
на паўднёвым усходзе – умоўная лінія, якая ідзе ад кропкі 7 на ўсход на адлегласць 3,17 м да кропкі 15; далей па паўночна-заходняй мяжы зямельнага ўчастка па вул. Садовай, 2 да кропкі 8;
на паўночным усходзе – умоўная лінія, якая ідзе ад кропкі 8 па паўднёва-заходняй мяжы зямельнага ўчастка па вул. Садовай, 2 да кропкі 9;
на паўночным захадзе – умоўная лінія, якая ідзе ад кропкі 9 на паўднёвы захад на адлегласць 3,2 м да кропкі 3; далей па мяжы тэрыторыі гісторыка-культурнай каштоўнасці праз кропкі 4–5 да кропкі 6.
11. На тэрыторыі ахоўнай зоны дзейнічаюць рэжымы ўтрымання і выкарыстання, устаноўленыя ў пункце 8 гэтага праекта зон аховы.
ГЛАВА 4
ЗОНА АХОВЫ ЛАНДШАФТУ
12. Зона аховы ландшафту ўстаноўлена з мэтай захавання навакольнага асяроддзя, азелянення і існуючага ландшафту, візуальна звязаных з гісторыка-культурнай каштоўнасцю.
13. Мяжой зоны аховы ландшафту згодна з дадаткам з’яўляецца:
на ўсходзе – умоўная лінія працягласцю 6,5 м, якая ідзе ад кропкі 11 на паўднёвы ўсход да кропкі 10;
на паўднёвым захадзе, захадзе – умоўная лінія працягласцю 70,3 м, якая ідзе ад кропкі 10 уздоўж мяжы зямельнага ўчастка па вул. Садовай, 2 праз кропку 9 да кропкі 3; далей па межах тэрыторыі гісторыка-культурнай каштоўнасці і ахоўнай зоны праз кропкі 4–5–6–7 да кропкі 14; далей уздоўж мясцовага праезда праз кропку 13 да кропкі 12;
на паўночным захадзе – умоўная лінія, якая ідзе ад кропкі 12 на поўнач уздоўж праезнай часткі вул. Цэнтральнай да кропкі 11.
14. На тэрыторыі зоны аховы ландшафту забараняецца:
узвядзенне будынкаў і збудаванняў;
правядзенне работ па добраўпарадкаванні і азеляненні, якія пагаршаюць візуальнае ўспрыманне гісторыка-культурнай каштоўнасці і парушаюць характар існуючага ландшафту, рэльефу;
пракладка інжынерных камунікацый, акрамя рэканструкцыі (рамонту) існуючых інжынерных камунікацый, мясцовых праездаў і дарог;
высечка дрэў, акрамя аб’ектаў расліннага свету, якія знаходзяцца ў неналежным (аварыйным) стане на падставе заключэння аб прызнанні дрэва небяспечным, а таксама акрамя санітарных высяканняў.




